Accueil    Consulter les annonces    Passer une annonce    Mes favoris    Conditions    Conseils Nous contacter    Espace Perso   
 
VenteTerrain45 - Loiret45300 - BOUILLY EN GATINAIS
 
   ANNONCE DE AKTIFIMMO

vente terrain loiret bouilly en gatinais

 VENTE : TERRAIN 
cliquez sur les photos pour les agrandir
 
 
 
AJOUTER A VOS FAVORIS
IMPRIMER CETTE ANNONCE
RETOUR A LA LISTE
 
 
 
 
 REF : 5673469 29/04/2026

45300 - BOUILLY EN GATINAIS


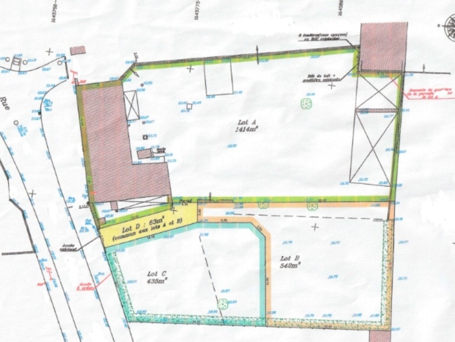
Terrain à bâtir de 435m2, possédant une façade de 13.5m dans la jolie commune de bouilly en gatinais. proche de pithiviers.



29 000 €



 Informations principales


 Aménagements
 
 


 Contacts





Agrandir le plan

Cette annonce a été visitée 213 fois
Dernière visite le 17/04/2026
 
 
Avertissement : Les annonceurs sont seuls responsables du contenu de leurs annonces. ACROPOLE-IMMO.NET ne saurait être tenu pour responsable de litiges entre acheteurs et vendeurs.
N'envoyez jamais d'argent ou de marchandises sans sérieuses garanties. Soyez méfiant pour toute offre en provenance de l'étranger (risque d'arnaque).

Consultez notre page : CONSEILS POUR EVITER LES ARNAQUES

 
 
 
 
 
 
 
Copyright © ACROPOLE-IMMO.NET 2026